Select Floor Plan
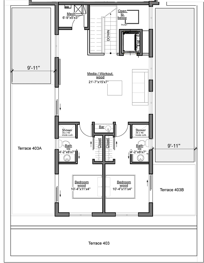
Unit# 403
BEDROOMS 3
BATHS 3.1
INTERIOR 3286
EXTERIOR 857
Unit 403 Upper